


Продам квартиру в Минусинске
1 750 000 ₽
VIKTOR VASILEVICH Создано 3 года назад
Минусинск



Информация
Основное
Категория
Недвижимость
Подкатегория
Квартиры
Расположение
Город
Минусинск
Характеристики
Тип объявления
Продам
Вид объекта
Новостройка
Количество комнат
1
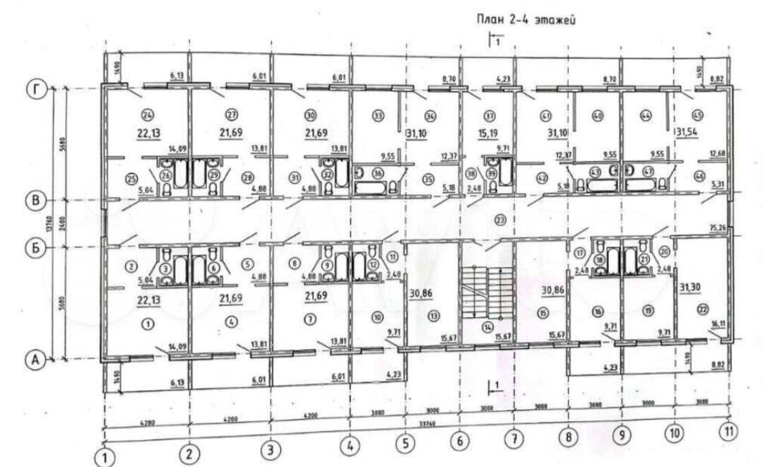
Общая площадь, кв.м.
24
Этаж
3
Этажей в доме
5
Тип дома
Панельный
Описание объявления
Студия, 24 м1
3 этаж, балкон 6 м в новом строящемся панельном 5-этажном доме по адресу: г. Минусинск, улица Шумилова, 54
Предчистовая отделка от Застройщика. Остекление балконов от застройщика, сертификат на натяжной потолок, стены подготовлены под обои, стяжка на пол, разводка электрики, розетки, выключатели, разводка труб холодной и горячей воды, канализации, обогреватель в санузле.
В квартире совмещённый санузел.
Сдача 4 квартал 2023 года.
1100000 на руки, а 650000 оплачиваете следующий платёж)))
Подробности по телефону или при встрече.
Возможно вас заинтересуют





