Параметры
Поиск по объявлениям
Категория
Выберите категорию
Любая
Город и район
Выберите город
Краснодар
Выберите район
Любой








Продам в Краснодаре
3 100 000 ₽
Создано 3 года назад
Краснодар








Информация
Основное
Категория
Недвижимость
Подкатегория
Квартиры
Расположение
Город
Краснодар
Характеристики
Тип объявления
Продам
Вид объекта
Вторичка
Количество комнат
2
Общая площадь, кв.м.
30
Этаж
1
Этажей в доме
1
Тип дома
Кирпичный
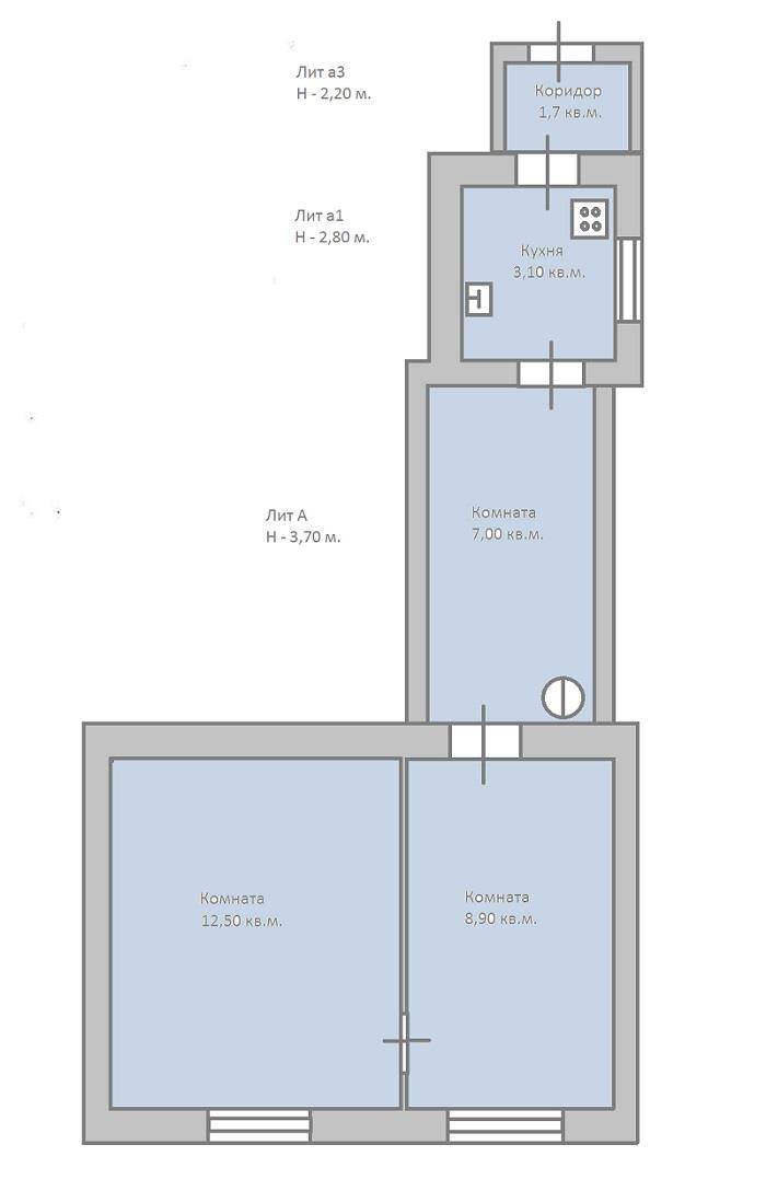
Описание объявления
Продам двухкомнатную квартиру на земле, расположенную в центре города.
Две жилые комнаты, кухня, совмещен, cанузел. Высокие потолки 3.4 м. Обычное жилое состояние.
Дом кирпичный. Все коммуникации центральные. Свой отдельный двор. Есть свободный участок земли 2 сотки, можно сделать пристройку. На участке расположен металлический гараж.
Возможно вас заинтересуют














